Нужен дизайн интерьера?
Квартира для любителя вечеринок: брутальный и смелый интерьер в красно-черных цветах
Спроектировал практичный интерьер, в котором приватная зона хозяина отделяется от общей, где он мог бы устраивать вечеринки и приглашать гостей. Интерьер построен на сочетании черного цвета, ярких акцентов и фактурных материалов.
Заказчик и задачи
Эту квартиру в одном из жилых комплексов Санкт-Петербурга приобрела мама в подарок для сына, 25-летнего парня. И обратилась к дизайнеру Николаю Сорокину для того, чтобы оформить интерьер. У будущего хозяина практически не было пожеланий, кроме одного — «хочу черную спальню!»
Образ жизни и увлечения молодого человека диктовали определенные требования к интерьеру. Парень любит вечеринки, и квартира должна соответствовать, быть практичной и легкой в уборке. Сформулировали и конкретные требования к функционалу: современная ТВ-зона с качественным объемным звуком и мягким диваном и место для онлайн-игр с мощным компьютером и удобным креслом для долгих игр. Также нужно было место для релакса, где можно уединиться, выпить чашку кофе, и комфортная спальня с возможностью выспаться даже днем.
Перепланировка
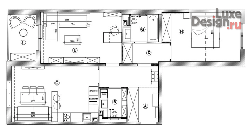
По изначальному плану это была просторная двухкомнатная квартира с двумя санузлами и большой кухней. После обсуждения пожеланий и рассказа об образе жизни молодого человека была определена основная задача — разделить пространство квартиры на личное и общее. Таким образом, чтобы к личным вещам хозяина квартиры не было доступа у сторонних людей.
Для этого сделали перепланировку. В общее пространство вошли прихожая с гостевым санузлом, кухня и гостиная, где разместили рабочее место с компьютером. И из этой же комнаты можно попасть на лоджию. Гостевой санузел увеличили за счет коридора, чтобы уместить там постирочную зону, а вход в гостиную перенесли, чтобы изолировать приватную часть.
В личное пространство вошли спальня, своя ванная и коридор, который их соединяет. В этот коридор сделали дверь на замке — так что хозяин может в буквальном смысле запирать эту зону, когда собирает гостей. Также в ходе перепланировки в спальне сформировали нишу для встроенной системы хранения.
Отделка
Отделочные материалы должны были обеспечить «живучесть» квартиры. Вся отделка — антивандальная. Для санузлов традиционно выбрали керамогранит. В ванной — под серый мрамор, в санузле — под черный. Также керамогранит уложили на пол в прихожей. «Помещение прихожей традиционно приходится очень часто убирать, с улицы заносится пыль и песок. Чтобы избежать частой уборки, я предложил материал, на котором это не так заметно. Керамогранит с имитацией серого бетона отлично подошел для этой задачи», — объясняет автор проекта.
В гостиной и прилегающем к ней коридоре — кварцвинил. Еще один практичный материал, который не боится воды и грязи. Отделку уложили единым полотном без порожков. При активной и не бережной эксплуатации первыми на полу отлетают порожки. Нам нельзя было такого допустить. Дополнительным плюсом этого материала стало то, что он поглощает шум в отличие от ламината.
Для кухни выбрали наливной пол. Покрытие — сверхпрочное, аналог того, что используют на промышленных складах. У него очень высокая устойчивость. Кроме этого, мы избавились от швов на полу. Чаще всего на кухне лежит керамогранит, и со временем затирка между швами меняет цвет, пачкается. Чтобы этого не происходило, нужно очень внимательно и тщательно убираться. В нашем случае это было неприемлемо». Для спальни выбрали ламинат.
Стены оформлены декоративной штукатуркой и микроцементом, оба варианта отделки дополнительно покрыли антивандальной пропиткой, которая сделала их практически «неубиваемыми» и простыми в уходе. Кроме того, декоративная штукатурка позволила «поиграть» с фактурами. Так, например, в гостиной она имитирует бетон, а на кухне в зоне ТВ — медные панели.
Объема и фактуры в проекте добавил декоративный кирпич — в обеденной зоне на кухне, на стене за телевизором в гостиной и за изголовьем кровати в спальне. Смысловыми акцентами стали две работы, выполненные художниками в стиле граффити на стене на кухне и лоджии.
Потолки оформлены по-разному. В спальне, гостиной и на лоджии они черные, окрашенные. На кухне в зоне кухонного гарнитура и в прихожей сделали имитацию бетона. В санузлах, частично в гостиной и в остальном пространстве кухни потолки классического белого цвета.
Мебель и системы хранения
В первую очередь системы хранения отвечают тем же принципам — антивандальность и удобство уборки. Вся корпусная мебель для этого проекта разработана индивидуально. В прихожей предусмотрели шкаф, где есть место для верхней одежды, мелких предметов вроде ключей, зонтиков, а также крупногабаритных чемоданов (на антресоли). В гостиной — шкафы и тумба под телевизор, а также стеллаж за рабочим столом. Корпус шкафов как бы спрятан за сварным металлокаркасом. С одной стороны, это повышает прочность мебели, с другой — добавляет брутального шарма помещению, подчеркивая бескомпромиссность выбранного мужского стиля.
В коридоре приватной части квартиры есть шкаф для спортивных принадлежностей, в спальне — встроенный шкаф, его фасады выкрашены в цвет стен. Это позволило визуально растворить крупный предмет мебели в пространстве. Автор проекта говорит, что шкаф с секретом: Если открыть створки, мы увидим корпус шкафа, сделанный под светлое дерево. А если выдвинуть ящики, то увидим яркий красный цвет. Это маленький цветовой и позитивный секрет этого внешне черного шкафа.
Кухонный гарнитур сделали угловым с барной стойкой. Фасады выбрали из современного пластика с восстанавливающимся покрытием— еще один атрибут практичности в этой квартире. Предусмотрели всю необходимую технику, хотя, по словам автора проекта, сделали это «на всякий случай». Хозяину нужна была разве что кофемашина.
Мягкая мебель и стулья попали в категорию «расходных предметов. Диван на кухню, барные стулья, обеденные стулья приобретены в ИКЕА. Диван в гостиную — с антивандальным покрытием, при этом очень комфортным.
Освещение
В каждой комнате заложено несколько сценариев освещения: общий потолочный свет, зонированный (по функциональным зонам) и декоративный.
К общему относятся потолочные встроенные и накладные светильники. К освещению по функциональным зонам — светильники над обеденным столом, подвесы над барной стойкой, подсветка под верхними шкафами кухонного гарнитура. Подвесные светильники по бокам от кровати размещены в спальне. Потолочные и настенные бра, которые можно регулировать, — над диваном и рабочим столом в гостиной. Декоративная подсветка есть в нише за телевизором.
Текстиль и декор
Общие требования к текстилю были несложные — простые в уходе ткани, на которых меньше оседает пыль. Особое внимание уделили спальне, здесь было необходимо подобрать шторы-блэкаут, которые полностью блокируют свет из окна, даже днем. Это способствует комфортному дневному сну. Эти пожелания выполнены. Отдельную роль автор проекта отдал картинам. Они написаны художниками специально под этот проект. Картины несут определенный посыл, который зритель может расшифровать самостоятельно. Каждый увидит что-то свое. Даже человек, который далек от искусства, оценил и уже не готов расстаться ни с одной из этих работ
Эта квартира, дизайн-проект и его реализация была подарком мамы для своего сына. Парень, которому предстояло жить здесь, сказал только об одном — хочу полностью черную спальню. При личной встрече по его гардеробу стало понятно, что он любит черный. А при общении выяснилась интересная деталь: все его носки, и уже очень давно, — красные и только красные. В этом я увидел идею для интерьера. К примеру, можно обратить внимание на потолок в прихожей и коридоре. Сделана открытая проводка в красной оплетке. И это всего лишь одна пикантная деталь проекта. «Я мечтаю жить в такой в квартире, если бы не семья и дети», — эта фраза часто звучала в этой квартире. Искусство всегда вызывает эмоции. Этот проект никого не оставляет равнодушным. Кто-то ужасается его мрачности. Кто-то восторгается его смелости.




























Реализованный проект
Стиль интерьера:
Современный стиль
Работа дизайнера:
Сорокин Николай Николаевич